Direkt zum Inhalt
Navigation aktivieren/deaktivieren
Main navigation
Leistungen
Projekte
Stadtforschung
Sekundärmenü
Start
Portfolio
Impressum
Projekte
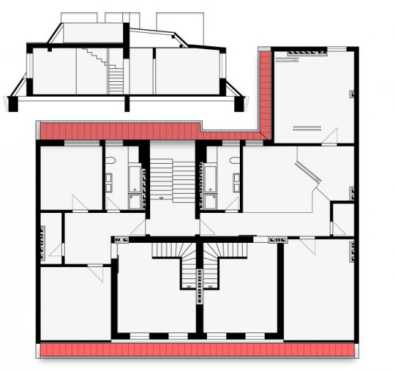
Stadthaussanierung Paul Robeson
Erweiterung Dachgeschoss, Sanierung der Fassade
#Architektur #Wohnungsbau
Fertigstellung:
Januar 2013
Auftraggeber:
Steffen Wollek
Art der Leistung: Erweiterung, Sanierung
Bearbeitung: Sebastian Wetzer, Claudia Schimming, Christopher Jonas
Projektende:
Januar 2011
Ähnliche Projekte
2007
Meisterhäuser von Walter Gropius, Dessau
2016
Eupener Stieg 1-5, Hamburg
2025
Casa, Lutherstadt Wittenberg
Previous
Next